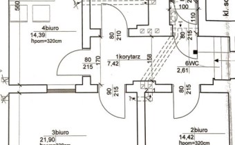
Na sprzedaż lokal usługowy/mieszkalny o powierzchni 70,04 m², położony na parterze zadbanej kamienicy w Śródmieściu Szczecina, przy ul. Ściegiennego.
Lokal został przrkształcony w uzytkowy z mieszkania i od lat wykorzystywany jako kancelaria, Isnieje możliwość wtórnego przeksztalcenia na lokal mieszkalny.i stworzenie pięknegp, dużego mieszkania. Utrzymany w bardzo dobrym stanie technicznym, gotowy do dalszej pracy bez konieczności inwestowania.
To miejsce idealne dla działalności wymagającej spokoju, prywatności i dobrej dostępności dla klientów.
Świetnie sprawdzi się jako:
Układ czytelny i wygodny, łatwy do ewentualnej adaptacji pod inną branżę.
To stabilny, dobrze utrzymany lokal w sprawdzonej lokalizacji.
Dobry zarówno do prowadzenia własnej działalności, jak i jako inwestycja z gotowym najemcą.
Zadzwoń i umów się na prezentację




Uwaga: mogą wystąpić dodatkowe opłaty za założenie księgi wieczystej oraz ustanowienie hipoteki.