Na sprzedaż działka budowlane z aktualnym pozwoleniem na budowę, o powierzchni (0,1067 ha) w miejscowości Radawka – tylko 1200 m od morza!
Idealne miejsce na dom wakacyjny lub do zamieszkania – cicha, nadmorska okolica, a jednocześnie blisko Dziwnówka (3 km) , Pobierowa i Kamienia Pomorskiego.
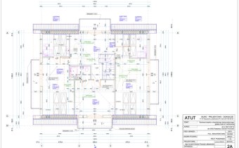
Działka z aktualnym pozwoleniem na budowę:
Budynku mieszkalnego zaprojektowanego jako obiekt wolnostojący, dwukondygnacyjny
(druga kondygnacja w dachu stromym ) w pełni podpiwniczony. Budynek o powierzchni zabudowy 160,10m2.
Garaż zaprojektowano jako obiekt wolnostojący, jednokondygnacyjny z wysokim dachem, gdzie zaprojektowano apartament o powierzchni zabudowy 68,3m2
W projekcie uwzględniono niezbędna infrastrukturę techniczna w tym : zewnętrzna instalacja kanalizacji sanitarnej ze szczelnym betonowym zbiornikiem bezodpływowym na nieczystości ciekłe o pojemności 10m3, zewnętrznej instalacji kanalizacji deszczowej ze szczelnym zbiornikiem retencyjnym na wody opadowe o pojemności 10m3, zewnętrzna instalacja wodociągowa, oraz instalację źródła ciepła - pompy ciepła.
Dodatkowym atutem jest dzierżawa dwóch sąsiednich działek z prawem pierwokupu.
Atrakcyjna lokalizacja, gotowość do rozpoczęcia budowy i unikalna bliskość plaży – idealna oferta dla inwestora lub osób szukających własnego miejsca nad morzem.
Dla zainteresowanych posiadamy do wglądu pełną dokumentację techniczno - projektową
Zapraszamy na prezentację




Uwaga: mogą wystąpić dodatkowe opłaty za założenie księgi wieczystej oraz ustanowienie hipoteki.